14.500

Filosofgangen, Odense C – herskabslejlighed

Lejlighed Filosofgangen, Odense C - herskabslejlighed
  • Gade: Filosofgangen
  • Postnummer: 5000
  • By: Odense C
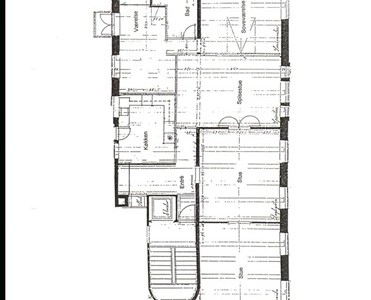
  • Boligareal: 180
  • Værelser: 6
  • Husleje: 14500
  • A/C Forbrug: 1400
  • Depositum: 43500
  • Lejeperiode: Ubegrænset
  • Husdyr tilladt: Nej

Filosofgangen, Odense C – herskabslejlighed

6 værelses lejlighed beliggende på Filosofgangen i 5000 Odense C. På 180m2 til 14.500 kr./md.

Boligen er på 180 kvadratmeter og har 6 værelser. Den månedlige husleje er 14500 kroner om måneden.

Boligen ligger på Filosofgangen i Odense C.

Klik her og læs resten af annoncen på lejebolig.dk   







Flere annoncer med Lejebolig i Odense C
Adresser på Filosofgangen i 5000 Odense C

Find lejebolig